江蘇翔盛環保科技有限公司
服務熱線:13962786756
QQ:645768680
傳真:0513-88482561
E-mail:13962786756@163.com
當前位置江蘇翔盛環保科技有限公司 >> 擋板門 >> 防爆門

.jpg)
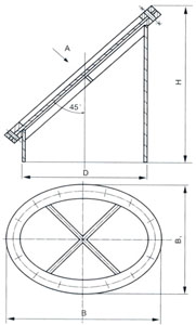
斜面防爆門 園形防爆門 重力防爆門
防爆門分膜板式和重力式兩種類型。 膜板式防爆門又分圓形防爆門、斜面防爆門、圓形帶活動短管防爆門、400×600帶活動短管防爆門,通常布置于熱風送粉管道上,斜面防爆門通常布置于戶外。帶活動短管防爆門布置于煤粉倉系統。重力防爆門有水平布置和垂直布置兩種,主要用于煙道。防爆門的作用是當煤粉受熱膨脹時,造成系統壓力過高,氣流沖破膜板或頂開重力蓋而泄壓,達到保護設備和管道的目的。該系列防爆門皆按照74DD標準(D-LD2000標準)制作。
園形防爆門

|
名 稱
|
規 格
|
圖 號
|
|
水平重力防爆門
|
Dg 450
|
DD4331
|
|
垂直重力防爆門
|
Dg 450
|
DD4332
|
|
帶活動短管防爆門
|
400*600
|
DD4341
|
|
園形帶短管防爆門
|
Dg 300
|
DD 4311
|
|
園形帶短管防爆門
|
Dg 400
|
DD 4312
|
|
園形帶短管防爆門
|
Dg 500
|
DD 4313
|
|
園形帶短管防爆門
|
Dg 600
|
DD 4314
|
|
園形帶短管防爆門
|
Dg 700
|
DD 4315
|
|
園形帶短管防爆門
|
Dg 800
|
DD 4316
|
|
園形帶短管防爆門
|
Dg 900
|
DD 4317
|
|
園形帶短管防爆門
|
Dg 1000
|
DD 4318
|